Type

  • Residence

Involvement

  • Designed by me.
  • Scheduled for completion 2027

Narrative

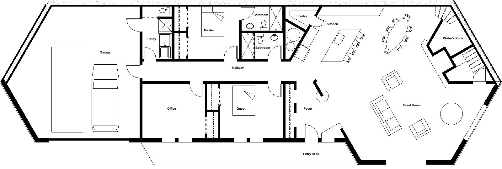
Amrta-Nilaya is to be the physical culmination of the Elena and Mike Byrne family legacy. A single-floor retirement home suited for hosting family Christmas and other gatherings, growing organic food, and staying thoughtful in a sacred piece of driftless-region land.

Photos

Exterior Rendering Floor Plan Early Roof Structure Concepts
Panel View

Updated: